3-Raum Wohnung, 2. Obergeschoss links
Beschreibung
3-Raum Wohnung, 2. Obergeschoss links, 63,48 m² Ruppertstal 17, 98544 Zella-MehlisInteresse? Wir beraten Sie gerne.
Telefon: (0 36 82) 4 78 72-15 oder per E-Mail an:
Ausstattung
Heizung: Zentralheizung (Gas)
Warmwasser: zentraler Warmwasserspeicher
Bad: gefliest mit Dusche und WC (innenliegend mit Elektro-Lüfter)
Küche: Küche mit Fliesenspiegel (mit Fenster),
Wohnung ist komplett renoviert; Raufasertapete weiß; PVC – Fußbodenbelag
Balkon vorhanden
Multimediaanschluss: TV, Rundfunk, Telefonie, Internet bis zu 400 Mbit/s möglich (Privatvertrag über Vodafone / Kabel Deutschland)
Mieterkeller und Wäscheplatz vorhanden
Pkw - Stellplätze vor dem Haus
Wohnung voraussichtlich vermietbar ab März 2026
Kosten
Grundmiete: 343,00 €
NK kalt: 120,00 €
NK warm: 70,00 €
gesamt: 533,00 €
Kaution: 1.020,00 €
Provision: keine
Sonstige Kosten: keine
Energieverbrauchsausweis: 108,4 kWh/m² pro Jahr; Erdgas; Bj. 1988
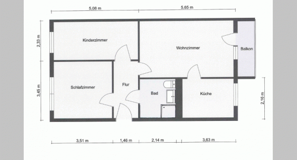
Wohnfläche gesamt: 63,48 m²
Wohnzimmer: 20,38 m²
Schlafzimmer: 12,14 m²
Kinderzimmer: 11,86 m²
Küche: 7,87 m²
Bad: 3,53 m²
Flur: 5,17 m²
Balkon: 2,53 m² (zur Hälfte angerechnet)
Hauptinformationen
Eigenschaften
Merkmale
Nachbarschaft
12 Minuten
12 Minuten
3 Minuten











