Zum Hauptinhalt springen
+49 3682 47872-0  I  Impressum Datenschutz
Wohnen in Zella-Mehlis
Mitten im Grünen Herzen Deutschlands
Wohnen in Zella-Mehlis
Attraktiv - Grün - Natur
Wohnen in Zella-Mehlis
Hier fühlt man sich wohl
Wohnen in Zella-Mehlis
Willkommen zu Hause!

Unsere aktuellen Wohnungsangebote

2-Raum Wohnung, 3. Obergeschoss rechts

Ruppertstal 13, 98544 Zella-Mehlis, Zella-Mehlis, 98544, Th, Thüringen
482 views
  • Hausansicht
  • Hausrückseite
  • Außenanlagen
  • Außenanlagen
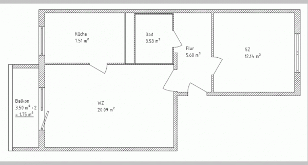
  • Grundriss
263,00 €/pro Monat

Beschreibung

2-Raum Wohnung, 3. Obergeschoss rechts, 50,62 m² Ruppertstal 13, 98544 Zella-Mehlis

Interesse? Wir beraten Sie gerne.

Telefon: (0 36 82) 4 78 72-15 oder per E-Mail an: Frau Kuta

 

Ausstattung

Heizung:           Zentralheizung (Gas)

Warmwasser:   zentraler Warmwasserspeicher

Bad:                 komplett gefliest mit Dusche und WC (inliegend mit Elektro-Lüfter)

Küche:             Küche mit Fliesenspiegel (mit Fenster),

Wohnung ist komplett renoviert; Raufasertapete weiß; PVC – Fußbodenbelag

Balkon vorhanden

Multimediaanschluss: TV, Rundfunk, Telefonie, Internet bis zu 400 Mbit/s möglich (Privatvertrag über Vodafone / Kabel Deutschland)

Mieterkeller und Wäscheplatz vorhanden

Pkw - Stellplätze vor dem Haus

 

Kosten

Grundmiete:      263,00 €

NK kalt:               80,00 €

NK warm:            47,00 €

gesamt:            390,00 €

Kaution:           780,00 €

Provision: keine

Sonstige Kosten: keine

 

Energieverbrauchsausweis: 114,7 kWh/m² pro Jahr; Erdgas; Bj. 1988

 

Wohnfläche gesamt: 50,62 m²

Wohnzimmer: 20,09 m²

Schlafzimmer: 12,14 m²

Küche: 7,51 m²

Bad: 3,53 m²

Flur: 5,60 m²

Balkon: 1,75 m² (zur Hälfte angerechnet)


Hauptinformationen

Quadratmeter
50.00 m²

Nachbarschaft

Stadtzentrum
15 Minuten
Schule
15 Minuten
Supermarkt
3 Minuten

Details der Immobilie

Wohnzimmer (qm) :  20,09
Schlafzimmer (qm) :  12,14
Küche (qm) :  7,51
Bad (qm) :  3,53
Flur (qm) :  5,60
Balkon (qm) :  1,75
Wohnfläche gesamt :  50,62
Trockenboden :  nein
Keller :  ja

Login to Save Favorites

Please wait...

This field is required
This field is required
Forgot password?

Unsere aktuellen Angebote an Miet-Garagen

Garage (Bestand Malzhohle)

Derzeit stehen keine freien Garagen zur Verfügung.

Wenn Sie sich für eine frei werdende Garage anmelden möchten, füllen Sie bitte das Kontaktformular unter Angabe des gewünschten Wohngebietes aus.

Unsere aktuellen Angebote an Stellflächen

Stellplatz mieten

Mieten Sie sich Ihren Stellplatz auf dem Parkplatz Ruppertstal zum monatlichen Mietpreis von 20 Euro. Im Mietpreis enthalten sind die Kosten für den Winterdienst.

Besucherparkplatz

Wenn Sie oder Ihr Besuch lediglich für einige Stunden oder Tage einen Stellplatz im Wohngebiet "Mehliser Struth" benötigen, kann auf dem Parkplatz Braugasse/Ecke Ruppertstal geparkt werden. Dort zieht man am Parkscheinautomat je nach Bedarf das gewünschte Ticket.